【拎包案例】166㎡現代輕奢設計,于簡單中打造奢華!

166㎡
樂陵·龍山公館
現|代|輕|奢|風|格
戶型案例介紹
Introduction
房屋類型:毛坯
一、樓盤信息
1.樓盤名稱:龍山公館
2.所在城市:樂陵
3.戶型類型:166㎡
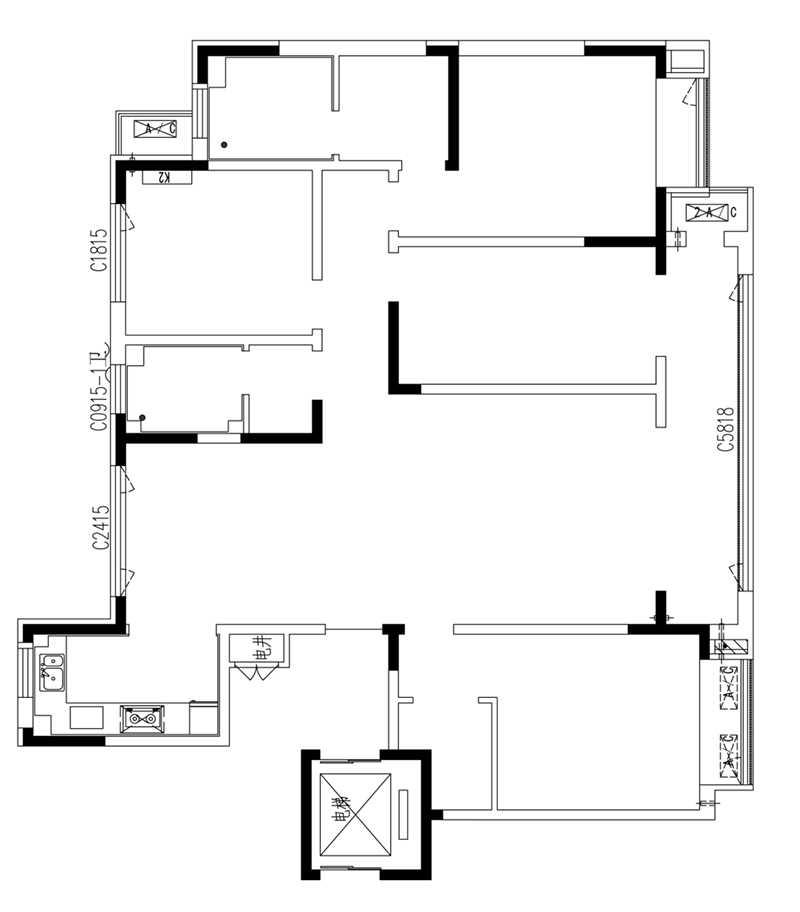
戶型-原始結構圖解析:
戶型風格:輕奢風格
優點:
1.主臥空間有獨立衣帽間、衛生間;
2.客餐廳聯動。
痛點:
1.入戶無玄關位置;
2.南次臥太??;
3.主臥衣帽間有點小。

▲原始結構圖

▲平面布局圖
戶型-平面布局解析
根據客戶實際需求解決方案如下:
玄關:入戶玄關區,鞋柜+餐邊柜+電視柜一體化設計,增加收納空間;
客廳: 滿墻電視柜設計滿足儲物;
主臥:1800mm床,獨立衣帽間設計,衣柜+化妝區,滿足休息和儲物;
兒童房:書桌衣柜一體化設計,滿足儲物休息以及學習;
次臥:1500床+一排衣柜設計;
廚房:廚房L型設計,滿足洗切燒三角區;
餐廳:西廚區嵌入功能電器+6-8人餐桌+餐邊柜。

▲全屋材質搭配
本案業主為夫妻兩人,家中有一個小孩,需要有兒童獨立房間,風格上夫妻偏愛于現代輕奢風。設計師在前期與業主的溝通交流中得知,在滿足常規需求之外,希望可以在主臥配一個衣帽間,特別強調他們需要更多地自由開放多功能的公共空間,及盡量多的收納空間。
根據需求,全案設計師采用明亮純凈的淺色為主色調,靈活運用各個空間材質,搭配百搭時尚的軟裝元素,營造雅致輕奢、高級又治愈的生活氛圍。
現代輕奢注重高品質與設計感,將優雅時尚的質感結合現代材質及裝飾技巧,展示著精致高端的生活態度,營造出一種高雅、舒適的生活方式。
01客廳 優雅 寬敞
當我們將純凈之態引入空間,以一種有序的路徑破開空間的局限,便形成一種凝固的美感。沙發和軟墊選擇優質材料,搭配細膩的紋路,展現出高貴的品味。


浮世沉沉,偏有一隅,帶來溫暖。整體采用凝霧灰、暗影灰與柔色軟裝的搭配,有層次感且不顯沉悶,顏色簡潔分明。墻柜一體的展示格局,無拉手設計,減少灰塵的堆積,清潔更加方便。
設計師以美學為載體,將高級極致演繹,傳遞出優雅的氣質,同時為整個系統提供了更多的趣味。
02 餐廳 愉悅 溫馨
餐廳由一張優雅的餐桌,搭配極具造型的餐椅,展現出豪華與舒適并存。整個空間通過柔和的燈光營造出浪漫溫馨的氛圍,讓用餐時光更加愉悅。

作為享受美食和休閑的中心區域,輕奢餐廳空間設計,不僅體現就餐文化的儀式感,更多強調的是一種視覺感官體驗,偏向時尚輕奢化!
03 廚房 寬廣 通透
深色的櫥柜盡顯奢華又耐臟,觸感光滑的表面,清潔更加方便,抹布一抹,煥然一新!櫥柜的整體設計,著重展現出線條的利落感與平行之美。空間占比是根據廚房大小量身配置的,留出的空間恰到好處,轉身自如。

04 主臥 舒適 融合
輕奢臥室的獨特魅力在于既能表現出輕松、品位、大氣感,也能展露浪漫、高雅、端莊風情。
深色與白色并非界定世界的色彩,在色彩上用充滿生機又溫暖的莫蘭迪綠營造活力,用柔和的亞麻色系引入房間,像一股清泉灌入平靜的海洋,帶來雀躍的驚喜,卻未打破整體的和諧,增加主臥的輕奢氣息!



主臥衣帽間配有穿插設計的書桌,除了辦公,還可以實現閱讀、化妝、茶歇等多個功能。高級灰是輕奢常用色,玻璃柜門讓整個空間質感上升。
05 兒童房 美觀 靈巧
兒童房背景以深色系為主,純色墻板以及木質格柵搭配做滿整面墻,工藝縫做自然分割更顯靈巧。在柜子的細節上,進行了些許新的嘗試,書桌與衣柜融合,一體化設計,整齊美觀。

06 次臥 現代 高級
深淺色碰撞,懸浮床頭柜設計,高級而又優雅,美觀又實用。衣柜是封閉的形式,軟裝搭配,整體配色高級大方。

「輕奢」它不僅代表一種精品生活方式,更代表著正在享受的高質量生活細節,輕奢風能真正體現奢侈的細節風貌。
100個家庭有100+N 種生活方式。這套現代輕奢風設計注重細致入微的細節和高品質的材料選擇。每個空間都通過精心設計的元素營造出舒適、優雅的氛圍。
整家定制,全案設計!我們賦予設計以溫度,為全國廣大業主提供多款專業化整家定制的設計解決方案。

訂單查詢
返回列表