【拎包案例】南京浦口店| 123㎡現代風格,勾勒理想家居空間
近期,歐蒂尼時常會根據新交房小區的常見戶型,推出線上直播戶型解析活動。為什么要做戶型解析呢?其目的很簡單,就是為了解決業主拿到房子之初一籌莫展的焦急心態。
戶型解析由歐蒂尼的全案設計師深入剖析戶型的優缺點,提供多種免費設計方案給大家參考。當然,每個家庭都有更個性化的需求,在實際對接過程中可以跟設計師進一步溝通去優化方案。畢竟只有在充分了解業主需求的情況下,設計才能有的放矢。
這次歐蒂尼家居走進的是南京浦口云江印月小區,為大家做了一場直播分享。此次拎包入住戶型解析會由歐蒂尼家居設計主管張谷兵老師為大家講解,重點分享了小區2款主打戶型的設計思路。

拎包入住,工廠主案設計師領銜設計。張老師主要從平面布局、風格參考、空間效果以及產品配置等四個方面進行詳細介紹。下面,小編以浦口云江印月小區123㎡戶型為例,為大家作詳細介紹。
戶型案例介紹
Introduction
房屋類型:精裝
一、樓盤信息
1.樓盤名稱:云江印月
2.所在城市:南京
3.戶型類型:123㎡

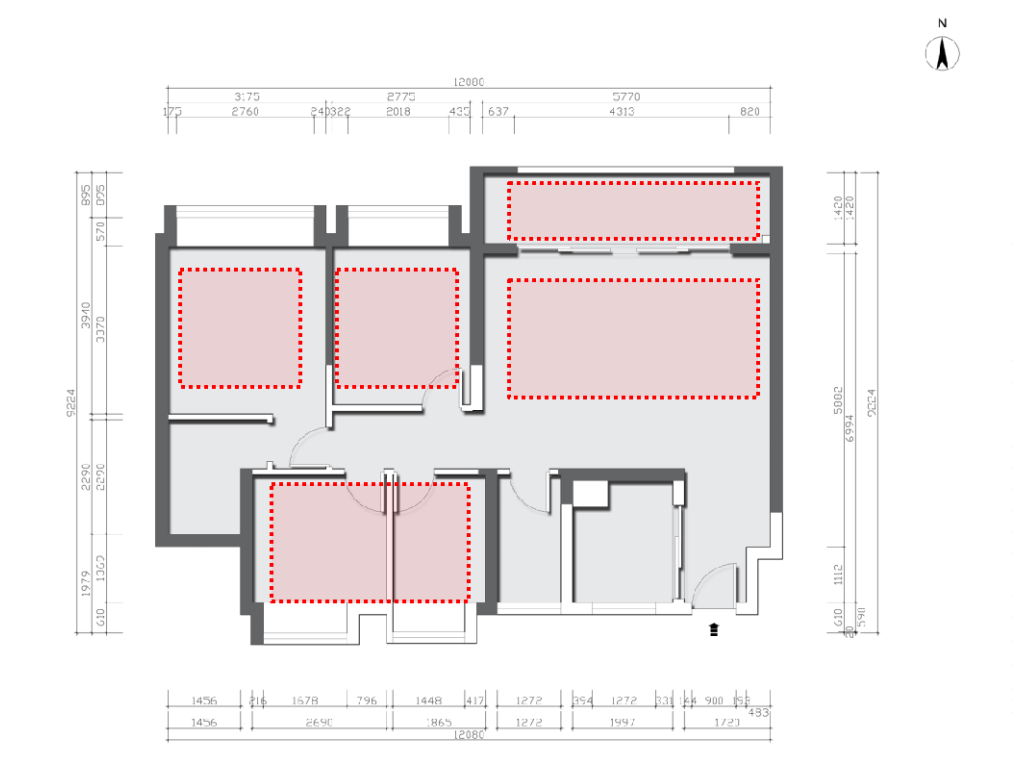
戶型-原始結構圖解析:
戶型面積 | 四室兩廳123㎡
項目風格丨現代風格
主材花色丨直紋灰橡+松花江烏木+安哥拉灰
材質搭配 |棉麻+皮質+石材+金屬+木色

▲原始結構圖
優點:
1.南北通透,采光好,動靜分區;
2.戶型方正,空間相對合理;
3.房型構造可做橫廳設計;
不足之處:
1.廚房面積較為局促,所占空間較小;
2.主臥南北間距較小;
3.北邊兩個空間較小;
通過這個方案可以發現,這個戶型的結構其實非常合理,但部分區域受面積限制較為不足。在這個基礎上,設計師做了2個方案的優化,布局圖如下。


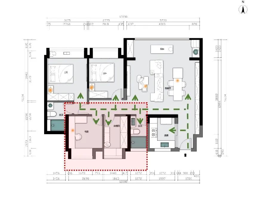
▲平面布局圖
戶型-平面布局解析
根據客戶實際需求解決方案如下:
玄關:玄關鞋柜與餐桌相互穿插設計;
廚房:L型廚房布局、簡約明亮、儲物洗切炒功能區分明,冰箱放廚房區域;
客廳: 常規三人沙發+茶幾組合,滿足休閑娛樂功能;
主臥:1800mm床一字型衣柜,滿足休息和儲物;
客臥:雙人1500mm床和衣柜;
書房:一排書柜+寫字桌;
多功能房:衣帽間+化妝桌;

▲全屋材質搭配
本案例的業主是一對年輕夫婦,他們對家居設計有很高的要求。他們偏愛現代風,希望可以打造一個溫馨、舒適、現代的家居環境,同時能滿足他們的生活需求。
現代風格是比較流行的一種風格,追求時尚與潮流,非常注重居室空間的布局與使用功能的完美結合。業主對生活品質有獨特的理解和定位,經過前期交流之后,設計師根據戶型結構講解了整體的家裝設計要點,從精裝房的色彩搭配到日常的家居布置,都以恰到好處的空間法則,讓業主享受舒適、健康美好的人居體驗。
▲客餐廳
整體以現代風格設計來搭配,為了使得空間保持寬敞舒適的格局,在客餐廳的布置上并不是以傳統的那種設計,而是把它們互通起來。


▲入戶空間
這個是鞋柜+展示柜+餐邊柜一體的設計,增加換鞋凳,帶來的是一個優雅實用的回家儀式感。巧妙融合,分區明確,美觀實用,臨時換鞋都方便存放于此。

▲主臥空間
臥室整體以灰色為主調,配上深色和木色背景墻以及床頭柜,為空間營造了一種靜謐,寧靜的氛圍,正好符合家人的睡眠需求。
一排衣柜,時需結合,滿足收納一體設計,整體簡單大氣的軟裝與硬裝布置,高端大氣,充滿了輕松閑適的氣質。

▲次臥空間
次臥的整體風格沿襲主臥一致,色調為灰白相結合,主打沉穩內斂。整體木色調,加上軟裝橘色和綠色作為點綴簡約大方。

▲多功能房
愛美女生是天性,無論是小女孩還是大女人,她們都想擁有一個專屬于自己的衣帽間。
此戶型衣柜與飄窗相結合,不僅滿足了日常收納和化妝桌功能而且顯得非常大氣,超大儲物空間輕松裝下四季衣物。
飄窗柜,在飄窗一側做通頂格子柜,臺面可以擺放綠植,擺件等,如此設計高端大氣有格調。

▲書房空間
現在很多人喜歡在家里設計書桌與書柜合為一體的組合,我們在與業主溝通時,也發現業主非常注重書房的實用性,為此,我們在設計上使用書柜與桌子穿插設計,書桌上方做隔板,簡潔大方。
在視覺上我們做到了更加美觀,同時還可以大大增加存儲空間,滿足收納和學習辦公功能,更重要的是,方便人們的學習以及生活。

我們在簡約的基礎上,暖而不熱,甜而不膩,營造一種云淡風輕的生活質感。歐蒂尼全案設計師在進一步的考慮用戶的情緒價值的同時,會多考慮用戶的使用習慣、視覺感受等,從而滿足用戶需求。
100個家庭有100+N 種生活方式。我們通過酷家樂軟件,精細選材,給您多重保障。歐蒂尼強大的產品供應系統,從定制家具、成品、軟裝、窗簾布藝、智能家居等方面為客戶完美地搭配出了客戶理想中的家居效果。最終的落地效果真正地做到了1:1復原。
整家定制,全案設計!我們賦予設計以溫度,為全國廣大業主提供多款專業化整家定制的設計解決方案。


訂單查詢
返回列表